Building on Legacy in Chester, Connecticut
Honoring the Past, Building the Future.
Our family is thrilled to share that Constanza & Company is beginning construction on our new 4,650 sqft mix-used space at 100 West Main Street in Chester, CT—a place filled with hometown history and meaning.
For nearly 78 years, this address was home to West Main Service, owned and operated by the Hansen family. Through generations, Carl Hansen and his family served the Chester community with dedication and care. Their business became a cornerstone of West Main Street and a symbol of small-town pride.
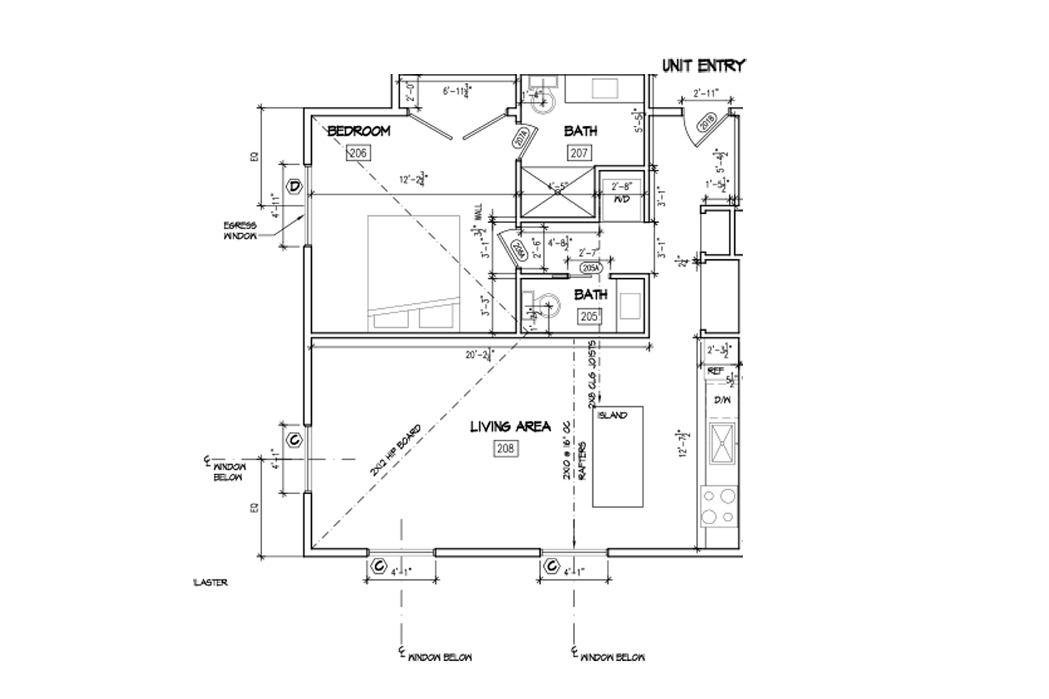
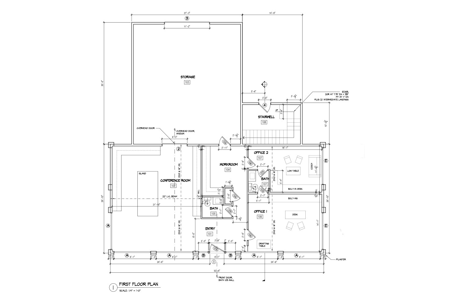
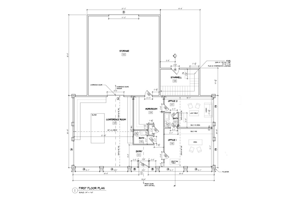
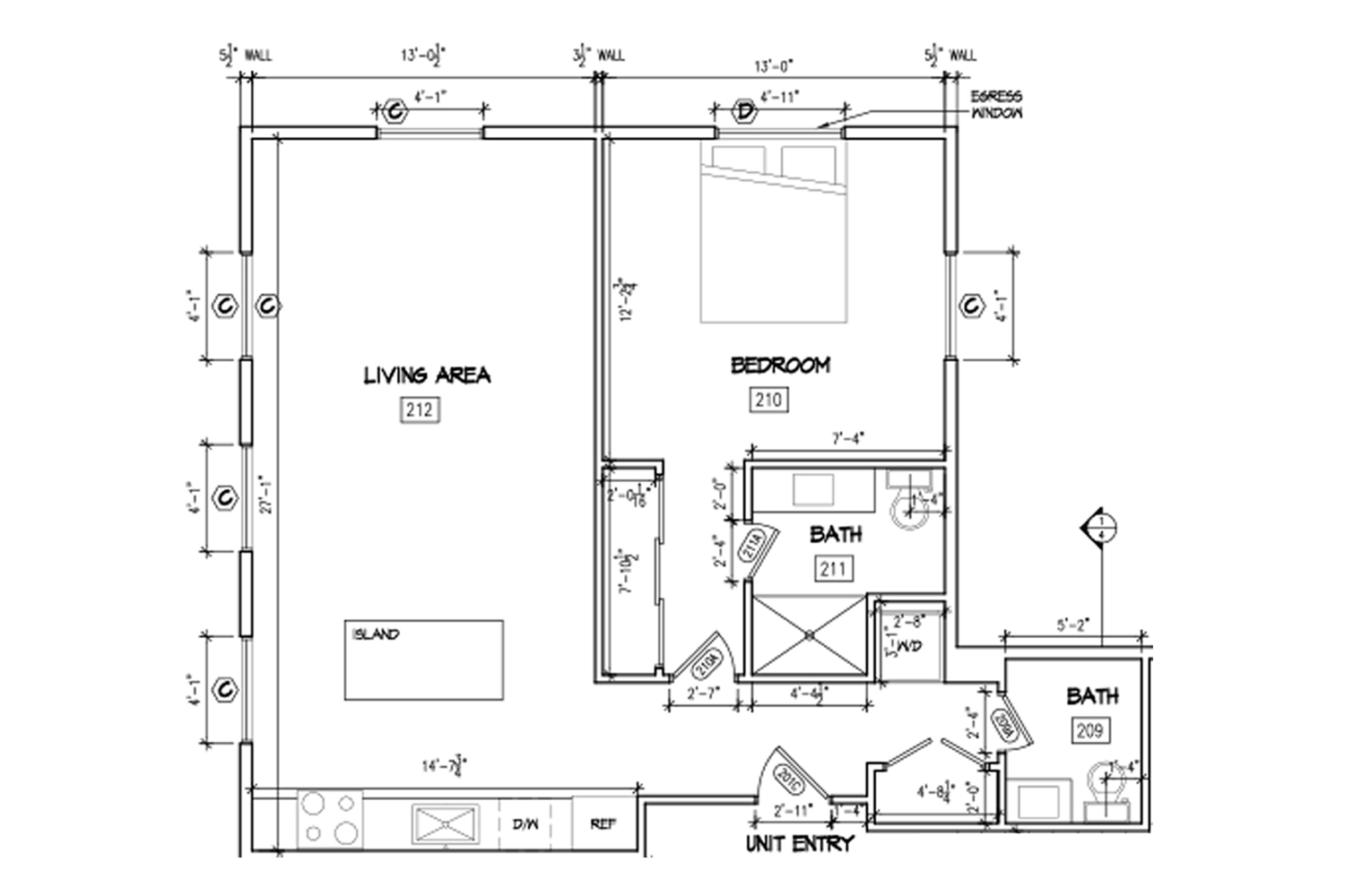
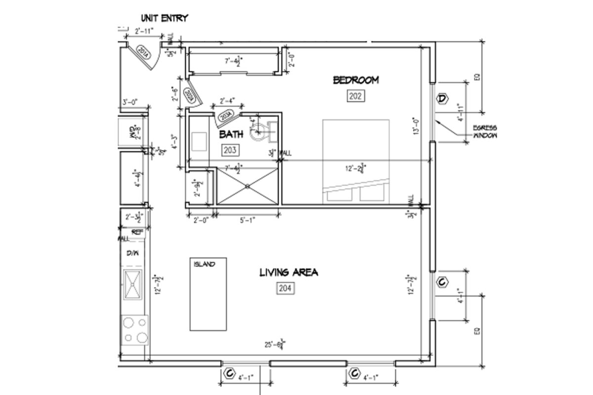
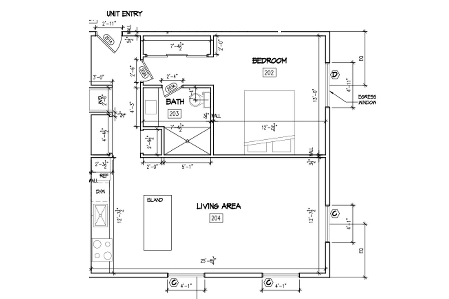
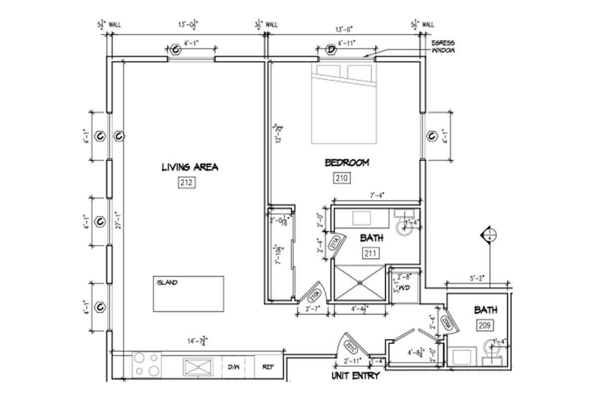
We are honored to carry forward that legacy as we transform the property into a new chapter of local life. The project will include our new company headquarters on the main level and three thoughtfully designed one-bedroom apartments above, continuing the building’s tradition of service and community connection.
The residential portion of the project will be managed through our sister company, Legado Realty LLC, which offers quality rental homes across Connecticut.
Transforming Tradition Into Innovation
Professional Development Team
Chris Arelt – Architect
P: 860.227.1169
James Bernardo – Surveyor
P: 860.447.0236
Wenke & Associates – Civil Engineer
P: 860.460.1606
GNCB Engineers – Structural Engineers
P: 860.388.1224
Tidewater Lighting – Lighting Consultants
P: 959.746.2071
A New Beginning Rooted in Tradition
Stay tuned for updates as we bring new life to 100 West Main Street — honoring its past and building for the future.
